
Khu vực cửa chính của căn hộ 110 m2 được cải tạọ thành sảnh chung cho 3 căn mini.

Khu sảnh có diện tích khá rộng rãi với 3 cửa dẫn vào 3 căn hộ nhỏ.

Căn hộ mini đầu tiên với không gian sinh hoạt bao gồm phòng khách và phòng bếp cùng một tầng lửng.

Cửa sổ lớn giúp nhà đón ánh sáng tự nhiên, kết hợp cùng tông màu trắng khiến không gian trở nên rộng hơn so với thực tế.

Tầng lửng được sơn màu nổi giúp tách biệt khỏi không gian phòng khách và bếp, điều cần thiết để hạn chế việc sử dụng tường trong không gian hẹp.

Diện tích không nhiều nhưng có thể thấy căn hộ mini này không thiếu tiện ích quan trọng nào, phía bên trái bếp là cửa vào công trình phụ.

Bếp ăn đầy đủ trang thiết bị tối thiểu cùng chạn bát đĩa được thiết kế đơn giản, tinh tế để làm thoáng không gian.

Phòng ngủ của căn hộ nằm ngay phía dưới tầng lửng, đi kèm tủ đồ và khu vực thay đồ.

Lối vào căn hộ số 2 khá hẹp do kết cấu có sẵn của căn hộ 110 m2 trước khi cải tạo.

Không gian đầu tiên khi bước vào căn hộ số 2 là căn bếp sơn màu neon.

Các kiến trúc sư tiếp tục sử dụng màu sắc để phân tách không gian.

Thay vì bếp trải dài như căn đầu tiên, bếp căn hộ số 2 có dạng chữ U với một quầy bar kiêm bàn ăn.

Cạnh căn bếp là cầu thang lên tầng lửng.Nội thất phòng khách được hướng ra cửa sổ để lấy sáng. Căn hộ số 2 là căn hộ có diện tích nhỏ nhất trong 3 căn hộ mini.

Diện tích không lớn nhưng phòng khách căn hộ số 2 vẫn giúp chủ nhân tiếp đón 2-3 vị khách cùng lúc.

Căn hộ số 3 với lối vào rộng rãi, sơn xanh tách biệt.

Tủ đồ cũng được thiết kế âm tường tại khu vực này.

Không gian căn hộ số 3 được thiết kế hài hòa, tầng lửng đóng vai trò là phòng ngủ.

Đây là căn hộ có không gian phòng khách và phòng bếp rộng rãi nhất trong ba căn.

Khu vực cửa sổ với cánh tủ giả thông minh có thể đẩy vào để làm bàn làm việc khi cần thiết.

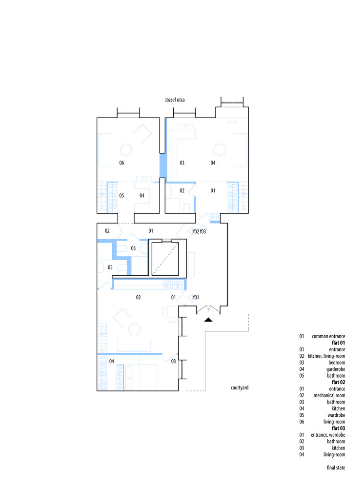
Mặt bằng căn hộ 110 m2 chia làm 3 căn mini.
Zing
0 nhận xét:
Đăng nhận xét